渋谷区宇田川町に新たなライブハウス・渋谷音楽堂オープン

139

6818

この記事に関するナタリー公式アカウントの投稿が、SNS上でシェア / いいねされた数の合計です。

  • 1952 4805
  • 61 シェア

2025年2月、東京都渋谷区宇田川町にライブハウス・渋谷音楽堂がオープンする。

渋谷音楽堂のイメージ画像。

渋谷音楽堂のイメージ画像。

高画質で見る

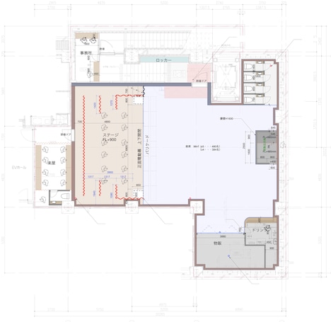
渋谷音楽堂の平面図。

渋谷音楽堂の平面図。 [高画質で見る]

渋谷音楽堂はLD&Kが運営する、430人を収容する会場。LD&Kがプロデュースする12店舗目のライブハウスとなる。なおLD&Kはコロナ禍で神奈川・1000 CLUB、東京・下北沢シャングリラ、渋谷近未来会館、道玄坂教会といったライブハウスやバーを出店した。

この記事の画像(全4件)

リンク

この記事が役に立ったらいいね!をお願いします

いいね!をすると、Xのタイムラインであなた向けのナタリーの記事が表示されやすくなります。

いいね!する

読者の反応

はる @Live_addiction

LD&Kがライブハウス作ったのかーΣ(゚□゚ノ)ノ https://t.co/4iF2eIHvLd

コメントを読む(139件)

あなたにおすすめの記事

このページは株式会社ナターシャの音楽ナタリー編集部が作成・配信しています。

音楽ナタリーでは国内アーティストを中心とした最新音楽ニュースを毎日配信!メジャーからインディーズまでリリース情報、ライブレポート、番組情報、コラムなど幅広い情報をお届けします。